INT HANDSOME GAMBLER - STAGE BUILD
       
     
Outer_Range_S2-Poster.jpg
       
     
INT HANDSOME GAMBLER - STAGE BUILD
       
     
Outer_Range-Handsome_Gambler_Bar-Stage_Build-1-process.jpg
       
     
EXT ABBOTT RANCH - RANCH HOUSE & BARN 1984, LOCATION BUILD
       
     
EXT ABBOTT RANCH HOUSE - WORK IN PROGRESS, LOCATION BUILD
       
     
Outer_Range-Ranch-6.jpg
       
     
Outer_Range-Ranch-1-process.jpg
       
     
EXT RANCH - LOCATION BUILD
       
     
Outer_Range-Ranch-1.jpg
       
     
EXT ABBOTT RANCH - BARN, WORK IN PROGRESS
       
     
Outer_Range-Ranch-4.jpg
       
     
EXT BILLBOARD - LOCATION INSTALLATION
       
     
EXT SHOSHONE CAMP - 1882
       
     
EXT SHOSHONE CAMP - 1882 - CONCEPT ILLUSTRATION
       
     
EXT SHOSHONE CAMP - 1882, SITE PLAN WITH NOTES
       
     
EXT SHOSHONE CAMP - 1882
       
     
EXT SHOSHONE CAMP - 1882
       
     
Outer_Range-SHOSHONE_CAMP.jpg
       
     
Outer_Range-Shoshone-3.jpg
       
     
INT TILLERSON RANCH HOUSE - STAGE BUILD
       
     
INT TILLERSON RANCH HOUSE - STAGE BUILD
       
     
INT TILLERSON RANCH HOUSE - WORK IN PROGRESS - FAUX WOOD LOG PRODUCTION
       
     
 “Wood Log” construction process part 2: Base color painting with additional layers, finished with detailed wood graining and ageing.
       
     
Outer_Range-Tillerson-Stage_Build-4.jpg
       
     
Outer_Range-Tillerson-Stage_Build-3-process.jpg
       
     
INT TILLERSON RANCH HOUSE - STAGE BUILD
       
     
Outer_Range-Tillerson-Stage_Build-1.jpg
       
     
INT TILLERSON RANCH HOUSE - SET PLANS
       
     
EXT WABANG, WYOMING - RANCH BACK LOT DRESS & MODIFICATION
       
     
INT COBBLER - WABANG 1882
       
     
Outer_Range-Wabang-1886-3.jpg
       
     
INT HANDSOME GAMBLER - STAGE BUILD
       
     
INT HANDSOME GAMBLER - STAGE BUILD

OUTER RANGE Season 2 | SUPERVISING ART DIRECTOR | AMAZON PRIME | Production Design by Cecele M. De Stefano

Greg Sandoval, Marisa Frantz, Art Directors, Kendra Tuthill, Assistant Art Director; Ariela Rivera, Set Designer; Melissa Shepard, Graphic Designer; Wil Pfau, Set Decorator; Ronnie Jaynes, Construction Coordinator, Randy Ortega Sr, Key Scenic; Forest Haag, Prop Master

Outer_Range_S2-Poster.jpg
       
     
INT HANDSOME GAMBLER - STAGE BUILD
       
     
INT HANDSOME GAMBLER - STAGE BUILD

OUTER RANGE Season 2 | SUPERVISING ART DIRECTOR | AMAZON PRIME | Production Design by Cecele M. De Stefano

Outer_Range-Handsome_Gambler_Bar-Stage_Build-1-process.jpg
       
     
EXT ABBOTT RANCH - RANCH HOUSE & BARN 1984, LOCATION BUILD
       
     
EXT ABBOTT RANCH - RANCH HOUSE & BARN 1984, LOCATION BUILD

EXT ABBOTT RANCH HOUSE - WORK IN PROGRESS, LOCATION BUILD
       
     
EXT ABBOTT RANCH HOUSE - WORK IN PROGRESS, LOCATION BUILD

Outer_Range-Ranch-6.jpg
       
     
Outer_Range-Ranch-1-process.jpg
       
     
EXT RANCH - LOCATION BUILD
       
     
EXT RANCH - LOCATION BUILD

Outer_Range-Ranch-1.jpg
       
     
EXT ABBOTT RANCH - BARN, WORK IN PROGRESS
       
     
EXT ABBOTT RANCH - BARN, WORK IN PROGRESS
Outer_Range-Ranch-4.jpg
       
     
EXT BILLBOARD - LOCATION INSTALLATION
       
     
EXT BILLBOARD - LOCATION INSTALLATION

EXT SHOSHONE CAMP - 1882
       
     
EXT SHOSHONE CAMP - 1882

EXT SHOSHONE CAMP - 1882 - CONCEPT ILLUSTRATION
       
     
EXT SHOSHONE CAMP - 1882 - CONCEPT ILLUSTRATION

José Itturriga, Illustrator

EXT SHOSHONE CAMP - 1882, SITE PLAN WITH NOTES
       
     
EXT SHOSHONE CAMP - 1882, SITE PLAN WITH NOTES

Ariela Riviera, Set Designer

EXT SHOSHONE CAMP - 1882
       
     
EXT SHOSHONE CAMP - 1882

Wil Pfau, Set Decorator; Mark Gadsbury, Key Greens; Daniel Holt, SPFX Coordinator; Clay Lilley, Boss Animal Wrangler

EXT SHOSHONE CAMP - 1882
       
     
EXT SHOSHONE CAMP - 1882

OUTER RANGE - SEASON 2 | SUPERVISING ART DIRECTOR | PRIME | Production Design by Cece De Stefano

Outer_Range-SHOSHONE_CAMP.jpg
       
     
Outer_Range-Shoshone-3.jpg
       
     
INT TILLERSON RANCH HOUSE - STAGE BUILD
       
     
INT TILLERSON RANCH HOUSE - STAGE BUILD

OUTER RANGE - SEASON 2 | SUPERVISING ART DIRECTOR | PRIME | Production Design by Cece De Stefano

INT TILLERSON RANCH HOUSE - STAGE BUILD
       
     
INT TILLERSON RANCH HOUSE - STAGE BUILD

INT TILLERSON RANCH HOUSE - WORK IN PROGRESS - FAUX WOOD LOG PRODUCTION
       
     
INT TILLERSON RANCH HOUSE - WORK IN PROGRESS - FAUX WOOD LOG PRODUCTION

“Wood Log” construction process: Block foam carving and shaping; Binder basecoat with plaster finish.

 “Wood Log” construction process part 2: Base color painting with additional layers, finished with detailed wood graining and ageing.
       
     

“Wood Log” construction process part 2: Base color painting with additional layers, finished with detailed wood graining and ageing.

Outer_Range-Tillerson-Stage_Build-4.jpg
       
     
Outer_Range-Tillerson-Stage_Build-3-process.jpg
       
     
INT TILLERSON RANCH HOUSE - STAGE BUILD
       
     
INT TILLERSON RANCH HOUSE - STAGE BUILD

Outer_Range-Tillerson-Stage_Build-1.jpg
       
     
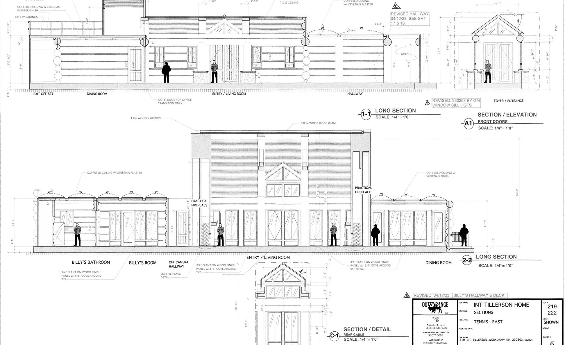
INT TILLERSON RANCH HOUSE - SET PLANS
       
     
INT TILLERSON RANCH HOUSE - SET PLANS

Gary Myers, Set Designer

EXT WABANG, WYOMING - RANCH BACK LOT DRESS & MODIFICATION
       
     
EXT WABANG, WYOMING - RANCH BACK LOT DRESS & MODIFICATION

INT COBBLER - WABANG 1882
       
     
INT COBBLER - WABANG 1882

Outer_Range-Wabang-1886-3.jpg